H.
Milward & Sons was a needle manufacturer from the Redditch, UK area during
the Victorian period. This company’s
full history can be found in the book entitled Histories of the Redditch
Area Manufacturers Associated with Avery Needle Cases written by Terry
Meinke in 2020. Only a brief history of
the company is included here because the focus of this chapter is the places in
Paris, France where the Milward company appears to have had offices or shops
between 1867 and 1900. To date the H.
Milward & Sons company name has only been found twice in a directory with a
Paris address, however, Beatrice style Avery needle cases stamped with their
company name have been found with three different Paris addresses engraved on
them. This seems to imply that this
company possibly also had shops in Paris for a period of time.
Company
History[1]
According
to several articles published in the late 19thand early 20th
centuries, Henry Milward & Sons was not only one of the oldest but also one
of the largest and best-known needle manufacturers in Great Britain. From its inception until the early 20th
century, this firm was owned and directed by six generations of the Milward
family[2]
who had needle mills or factories at two locations in the Redditch area. This seems most appropriate since the Milward
surname means “keeper of the mill”. For purposes of clarity, the first three
generations of family members with the forename Henry will be listed as Henry
I, Henry II and Henry III.
The
firm was established in 1730[3]
by Symon Milward who was 40 years old when he registered the business in his
son Henry I’s name during the first year of the son’s birth. Very little is known about the company during
its early years other than it was passed down from generation to
generation. When Symon died at age 80 in
1770, the business was taken over by his son Henry I who was 40-years-old that
year, which meant Symon was in charge of the firm for
about 40 years. Then when Henry I died
in 1798 at age 68 it passed to his son, also named Henry II, who was
28-years-old, meaning Henry I managed the firm for approximately 28 years. Henry II died at age 58 in 1828 and the
company passed to his son, again also named Henry III, who was 26 years old, indicating
Henry II managed the company for around 30 years. Henry III was the head of the firm for almost
50 years and his sons, John Frederic Milward and Victor Milward, joined him in
the business and took it over when their father retired in 1877[4]. John and Victor became full partners in the
business after the death of their father, Henry III, in 1878 and in turn passed
it to their eldest sons, Charles Fredric Milward and Henry Tomson Milward, in
1901 and 1916 respectively. Although it
is unclear exactly what the status of the Milward family was in the early
years, Henry III and his descendants not only reached the status of Esquire but
several were listed as members of the British aristocracy which certainly
helped their business efforts.
In
1871[5]
the firm employed 456 hands. Part of the company’s success was due to their
ability to increase needle production which was accomplished by the invention
of machinery that allowed their workers to produce more needles. In 1853 Milward registered patent number 2947
for “machinery for the manufacture of needles and fish hooks”[6]. Between 1867 and 1876[7]
they registered five more patents, one for a fan needle case, two for needle
wrappers and two for machinery for polishing needles. Also, in 1872[8]
they registered three additional needle case designs. These inventions not only increased
production but also improved quality. By
the 1880’s the number of employees grew to 700-800 who made between eight and
nine million needles and two million fish hooks each week[9].
Another reason for the company’s success
was not only the quality of their needles but also the fact that they sold
their products to a global market. Not
only did Milward have an office in Paris at the Boulevard de Sebastopol[10],
and agents on Gresham Street in London[11],
on Jointer Street in Manchester[12]
and at Fourth Avenue in New York[13],
but according to one article they shipped packets of needles to
“Australia, New York,
Paris, Berlin, Moscow, New Zealand, and indeed all parts of the world.”[14] Their global market is further confirmed by
their participation in international exhibitions where they received no less
than 30 first class awards since 1853[15]. These included: New York 1853[16];
Paris 1855[17], 1867[18],
1875[19],
1878[20],
1889[21],
1900[22];
London 1862[23], 1883[24];
Lyon 1872[25]; Vienna
1873[26];
Philadelphia 1876[27]; Sydney
1880[28];
Melbourne 1881[29];
Calcutta 1884[30];
Chicago 1893[31];
Brussels 1897[32], 1910[33];
Turin 1911[34] and
Rio, Brazil in 1922[35]. The five awards they received at the
Melbourne exhibition were listed in an 1881[36]
company announcement. At the Paris Exhibition in 1900[37]
Milward partnered with W. Bartleet & Sons, John James & Sons and Kirby,
Beard & Co. to create a collective exhibit of needles and fish hooks. It was named the “Redditch Joint Exhibit” and
won two gold medals that year. Of all
the needle manufacturers in the Redditch area, H. Milward & Sons appears to
have participated in not only the most exhibitions but they distributed their
needles and fish hooks to at least five of the world’s seven continents.
During
the last decade of the 19th century the needle industry in Redditch
began to decline and small and medium sized businesses were no longer as viable
as they once were. As a result, in the
first two decades of the 20th century the needle industry in Redditch went
through a dramatic change. Many of the
individual needle manufacturers merged in order to
form larger organizations who could better compete with foreign companies. Milward became one of two major needle
manufacturers in the area, the other being W. Hall & Co. from Studley. Around 1901, W. Avery & Son was sold to
John English & Son who in turn sold their business to Milward a few years
later[38]. Many other local needle makers merged with
either Milward or Hall. Then in 1930
Milward joined Hall to form Amalgamated Needles and Fish Hooks which in 1932
became a separate manufacturing organization named ENTACO (English Needle and
Fishing Tackle Co. Ltd.)[39]. In 1946 it was renamed Needle Industries and
was purchased by Coats Patons Ltd. in 1973.
H. Milward
& Sons, 65 Boulevard de Sebastopol, Paris, France
H.
Milward & Son participated in six international exhibitions in Paris
between 1855 and 1900 and according to the firm’s advertisement, seen on the
previous page, received awards in at least four of these exhibitions: 1855,
1867, 1875 and 1878. The 1878[40]
exhibition catalogue listed the firm as follows.

The
company was listed again in 1897[41]
with this same Paris address in the France section of Kelly’s Directory of
Merchants, Manufacturers and Shippers of the United Kingdom. This indicates that from at least 1878 until
at least 1897 the Milward company had some type of business at this address in
Paris, possibly a shop or warehouse where they sold or stored products to be
distributed to other areas. This
building was located on the corner of Boulevard de Sebastopol and Rue Etienne
Marcel, just a few blocks northeast of the Bourse
de Commerce - Pinault Collection Museum and the Saint-Eustache Church.
Beatrice
Needle Case Design
The
Beatrice needle case was the very first Avery style needle case which was
patented and manufactured in the city of Birmingham, UK, located only 15 miles
north of Redditch. Throughout the
Industrial Revolution, Birmingham’s[42]
focus was on creativity. Many
individuals worked in self-owned workshops making unique items displaying a
high level of creativity. During the
core years of the Industrial Revolution 1760-1850, Birmingham residents
registered over three times more patents than any other city in the UK. Metal items such as pen nibs and fancy
jewelry became very popular during this period and one section of the city
became known as the Jewellery Quarter because of the
large number of workers in that trade.
During the Victorian Period Birmingham’s population doubled making it
second largest city in the UK, a position it holds to this day.
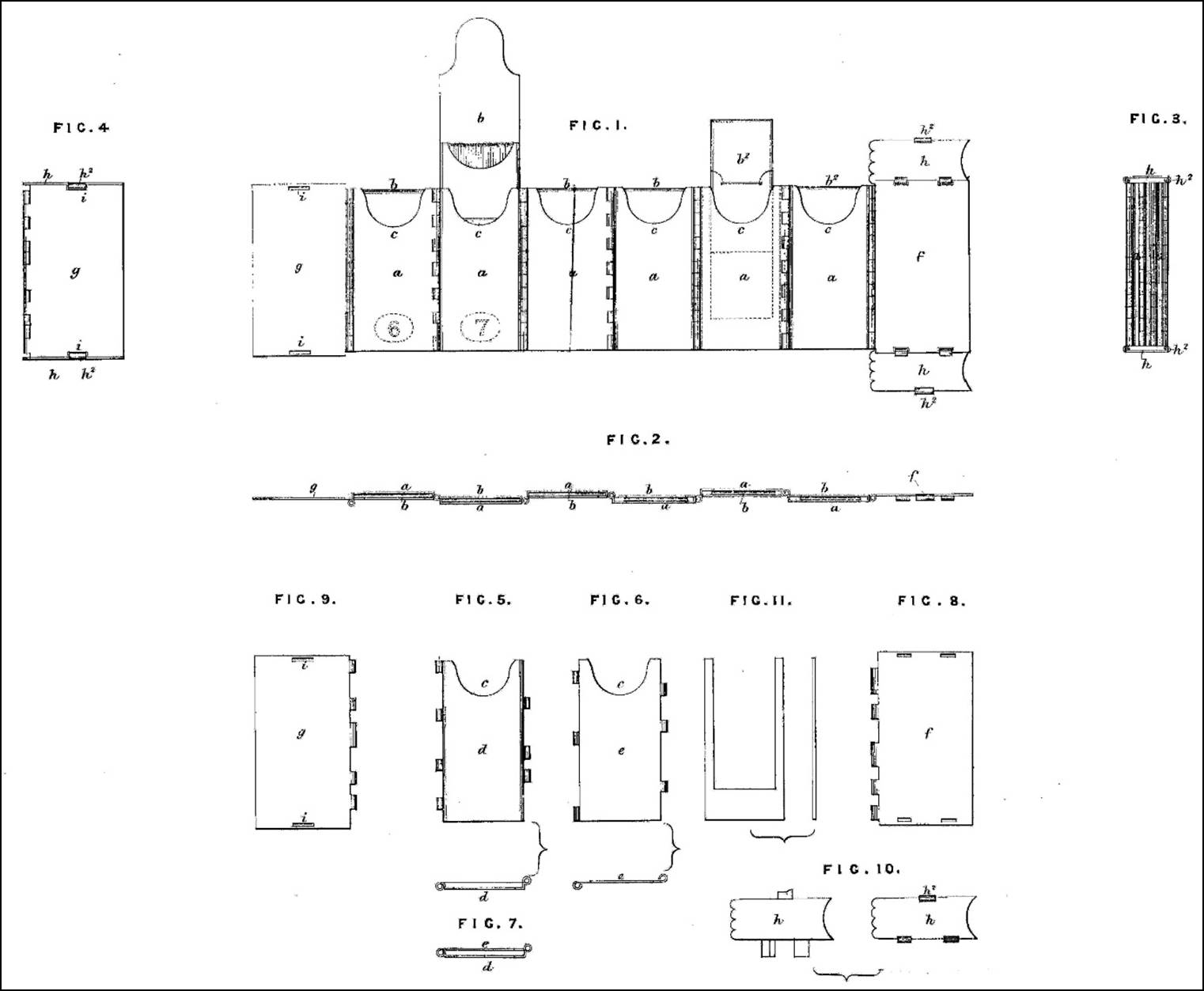
The
Beatrice needle case was patented in the UK on March 4, 1867[43]
by James William Lewis, a die-sinker from Birmingham and George Archbold, a
rouge manufacturer from Handsworth, a suburb of Birmingham. Both Lewis and Archbold were
located in the city’s Jewellery Quarter and
because they had skilled workers in the metal trade, they actually
manufactured the items they patented.
There are two basic versions of Beatrice needle case, one where the
exterior folds open
to display four interior sections to
hold needle packets and another with six interior sections. Below is a drawing of the six-section
interior from the original patent whereas the full patent design drawing can be
found in the Images section of this chapter.
Obviously after creating this patent, Lewis and Archbold made arrangements with other companies which determined
exactly what the exterior and interior detailed decoration would be like. To date only four company names have been
found stamped on this needle case although there are a few with no names: H.
Milward & Sons and Arthur James, two needle manufacturers from Redditch,
Albert Sharpe a dressing case manufacturer from London, and Perry & Co. a
pen nib manufacturer from Birmingham who had an office in London. The front and back exterior design
stamped on most of these needle cases
is a hexagon shaped center filled with flowers laying on a woven background,
pictured on the left. This exterior
pattern was the same for all of these companies except
the Albert Sharpe version which contained a
customized design with the Sharpe
name. Most of the exterior sides either
consisted of an engraved floral design
with the words Patent on one end and
the name Beatrice on the other end as seen in the photograph above on the
right. However, the Perry version sides
were a bit different with the words The Gem on one side and Patent Perry &
Co London on the other. Most of the
interior decoration on the needle packet sections of the needle case were
either engraved with long-stemmed bouquets or with an acorn/pineapple
decoration. However, both the Milward
and James interiors contained their company names with their business addresses. For example, the one displayed above on the
right includes the words “H. MILWARD & SONS PATENTLY WRAPPED NEEDLES
REDDITCH”.
H. Milward & Sons, Au Grand Marche Parisian[44]
The
interior sections of the Beatrice needle case pictured here contain the words
“H. MILWARD & SONS BREVETE SGDG” on one side (photograph on the
left) a
nd “AU GRAND MARCHE
PARISIAN” on the other side (photograph on the right). When translated Brevete
SGDG means “patented without government guarantees” and Au Grande Marche
Parisian means “at the Large Parisian Market” which was a shopping center
located at 3
Rue de Turbigo and Rue Francaise, three blocks west
of the 65 Boulevard de Sebastopol address and three blocks northeast of the
Bourse de Commerce - Pinault Collection Museum and the Saint-Eustache
Church. The shopping center’s c1870[45]
advertisement seen below contains the words “vastes magasins de noveautes” which when
translated means “large novelty stores”.
Also, there are two drawings on this advertisement, the “Eglise Saint-Eustache” church on the left and “Les Halles Centrales” (the central Halles) on the right which was most
likely what the shopping mall looked like at that time. The reason the church was shown on this
advertisement was because the Grand Marche Parisien shopping mall was located
about a block from it. It seems mos
t
likely that the Milward company either had a shop in this mall or had a close
relationship with another company in this mall who sold their needle cases
otherwise why would they
have their company name with this address engraved on a Beatrice needle case.

Here
on the right is an 1868 drawing of the Grand Marche Parisien shopping center (S=La Vie
Parisienne Dirigee Par Marcelin on www.books. google.com)
H.
Milward & Sons, Au Petit St. Thomas[46]
Another
Beatrice needle case with the words “H. MILWARD & SONS BREVETE SGDG” engraved on one
side of the interior sections had a different address engraved on the other
interior side. As seen in this photograph
it was listed as “AU PETIT ST. THOMAS 33 RUE DU BAC PARIS”. Au Petit St. Thomas was another shopping
center in Paris. It was located on the south
side o
f the Seine River at the corner of Rue de Bac and Rue de l’Universite, about five blocks south of the Jardin des
Tuileries which was next to the Louvre Museum on the north side of the Seine
River. One 1897[47]
advertisement, seen on the next page on the right, indicates this shopping
center was originally built in 1810 and was rebuilt/remodeled in 1897. This
advertisement contains the words “La plus ancienne
des Grands Maisons de nouveautes
de Paris’ which means it was one of “the oldest of the great novelty houses in
Paris”. Earlier
in 1867[48]
the Petit Saint Thomas looked like the drawing here on the right and in another
advertisement that year was described as follows. “The Petit Saint-Thomas became the darling of
all the ladies of the Parisian aristocracy who loved to stroll and shop
there. For everything that is
essentially Parisian in its domain of novelty, one should head straight for the
most elegant stores, which are those of the Petit Saint-
Thomas. Our aristocracy knows no others.”[49] The Rue du Bac became the meeting place for
Parisian fashion. Again, it seems most
likely that Milward either had a shop in this mall or had a close relationship
with another company in this mall who sold their needle cases otherwise why
would they have their company name with this address on a Beatrice needle case. The drawing on the previous page from 1867
and the one on the right here from 1897 show how different Petit Saint Thomas
looked 30 years later after it was rebuilt/remodeled.

Post
card showing the flooding of the Seine River in front of the Petit St Thomas
shopping center in 1910 (S=https://www.fortunapost.com/29086/26557.jpg).
H. Milward & Sons, Aux Armes de Russie[50]
A
nother
Beatrice needle case with the words “H. MILWARD & SONS BREVETE SGDG” engraved on one
side of the interior sections had another address engraved on the other
interior side. As seen in this photograph
here it was listed with the name “AUX ARMES DE RUSSIE RUE VIVIENNE 45” which
means “To the Arms of Russia” at 45 Rue
Vivienne. It was located about six to
seven blocks north of the Louvre Museum and roughly two blocks north of the
Palais Brongniart, the 19th-century stock exchange which is now a conference
venue with both modern & ornate spaces for events. Another Victoria shopping center known as the
Galerie Vivienne was a few blocks south of the Aux Armes de Russie. Again, it
seems most likely that the Milward company either had a shop in this mall or
had a close relationship with another company located here.
Other
French Items Associated with Milward
Further evidence that Milward had
strong relationships with companies or people in France was recently
discovered. The small advertising card[51]
seen here from the Victorian Period was created by someone most likely from the
Paris area. It has the words “Aiguilles Milward Elles sont les meilleures! Exiger
le nom . .
Milward” printed on it with a drawing of a woman showing a young girl
how to stitch or thread a needle.
Translated the words mean “Milward needles. They are the best. Demand the name Milward”. Obviously Milward must have been well known
in France and French speaking areas as one of the world’s best needle
manufacturers. In addition, a leather
needle case[52], pictured
on the next page, with the name “Au Louvre Aiguilles de tons gemres” was recently discovered on the internet which
translates to “At the Louvre Needles of gemstone tones”. The inside contains the words “Grands
Magasins du Louvre Paris” in one section and “Fabriquees
par H. Milward & Sons” proving his needles were also sold at this shopping
mall next to the Louvre Museum.



Drawing from
Mechanical Patent #603 dated March 4, 1867 (S=British Library - Business and
Intellectual Property Centre – London).
Needle Cases Stamped with the Milward name
and a Paris Address

Front
of the Au Grand Marche Parisian version of the Beatrice needle case (S=eBay).

Beatrice
needle case back with the Au Grand Marche Parisian name (S=eBay).
More
Needle Cases Stamped with the Milward Name and a Paris Address

Front
of the Aux Armes De Russie version of the Beatrice needle case (S=eBay).

Beatrice
needle case back with the Aux Armes de Russie name (S=eBay).
Boulevard de
Sebastopol, Paris

Views of the
building in Paris on the corner of Boulevard de Sebastopol and Rue Etienne
Marcel with the entrance to 65 Boulevard de Sebastopol on the left side,
2025. This is where H. Milward & Sons
was listed in an 1878 commercial directory.



Rue Turbigo,
Paris

View of the
building in Paris on the corner of Rue Turbigo and
Rue Francaise (building in the center) which is where the Aux Grand Marche
Parisian shopping center was originally located, 2025. Below: the 3 Rue Turbigo
entrance, just west of the building, which is the address stamped on a needle
case with the Milward name, 2025.


Rue de Bac, Paris

View
of the building on the corner of Rue de Bac and Rue de Montalembert where the Au
Petit St. Thomas shopping center was originally located, 2025.

Close
up of the west side of the building along the Rue de Bac, 2025.
Rue de Bac, Paris


Rue Vivienne, Paris
View of the Rue
Vivienne half way between Boulevard Montmartre and Rue Saint-Marc where the Aux
Armes de Russie shopping mall was originally located at 45 Rue
Vivienne. Unfortunately, this building was covered in plastic
because it was either being restored or renovated, 2025. This was also an address that was stamped on
a needle case with the Milward name.
What is most interesting about this area of Paris is that there are
three Victorian Era shopping malls within a few blocks and they provide a
possible view of what this building on Rue Vivienne was originally like. These include: Galerie Vivienne, Passage
Jouffroy and Passage Panoramas.
Photographs of these shopping centers can be found in the Grands
Magasins du Louvre chapter of this book.


Endnotes
[1] Most of the Milward history comes
from the seven sources listed here unless otherwise footnoted. 1: The British Trade Journal. British
Industries, dated October 1, 1880, page 497-499 with an article entitled
“No. C1. - Messrs. Henry Milward & Son, Needle and Fish-Hook Manufactory,
Redditch” (S=books.google.com). 2: Wyman’s
Commercial Encyclopedia of Leading Manufacturers of Great Britain, 1888,
pages 369-370 with article entitled “Henry Milward & Sons, Needle and Fish
Hook Manufacturers, Washford Mills, Redditch”
(S=books.google.com). 3: The
Victorian History of the Counties of England. The History of Worcestershire Vol
II, edited by William Page, pages 273-274 the section entitled “Needles”
(S=books.google.com). 4: The Engineer
Vol. LXXXV from January to June 1898, page 298-300 article entitled “The
Manufacture of Needles” dated April 1, 1898 (S=books.google.com). 5: Redditch and District Illustrated
Business Review, 1925, page 16 (S=copy of original obtained from Raymond
McLaren). 6: an article entitled Needle
and Fish Hook Making. Messrs. Milward & Sons, Washford
Mills, Redditch, c1900, page 72-75 (S=available at the Forge Mill Needle
Museum archives). 7: Henry Milward & Sons (S=Wikipedia)
[2] The family members and years are
listed in The Needle Industry in Redditch A Study Pack Forge Mill Museum,
page 24 (S=available at the Redditch Library).
Also based on the genealogical information uncovered and detailed in the
genealogy section of the Milward chapter in Histories of the Redditch Area
Manufacturers Associated with Avery Needle Cases, 2020, by Terry
Meinke. Additionally, many dates are
confirmed in A Genealogical and Heraldic History of the Landed Gentry
of Great Britain & Ireland, 1898, page 1036 (S=books.google.com) which
lists John Frederick Milward and his lineage back to Henry II.
[3] The established in 1730 date is
listed on most of the company’s advertisements and is included in many of the
sources in footnote 1 above.
[4] Milward Lease and Agreement of
Retirement - Reference #CR3097-119 and #CR3097-175 (S=Warwickshire County
Record Office, Warwick, UK).
[5] 1871 UK census for Henry Milward
(S4).
[6] English Patents Patent of
Inventions, No. 2947 dated December
19, 1853 (S=books.google.com).
[7] Patents for Inventions.
Abridgments of Specifications. Class 112, Sewing and Embroidering. Period –
A.D. 1867-76, 1904 (S=books.google.com).
Patents: 1868-8 page 32, 1870-1178 page 108, 1872-3227 page 221,
1874-3727 page 309 and 310, and 1875-3725 page 363.
[8] Design Registrations: Ornamental
designs #260633 and #260634 and Non-ornamental design
#5344 (S=The National Archives, Kew).
[9] The British Trade Journal.
British Industries, dated October 1, 1880, page 498 and Wyman’s
Commercial Encyclopedia of the Leading Manufacturers of Great Britain,
1888, page 369 (see footnote 1 for source information).
[10] Paris Universal Exhibition of 1878
Catalogue of the British Section Part I, page 150 (S=books.google.com).
[11] Listed on numerous 19th
century Milward advertisements.
[12] Listed in an 1886 Milward
advertisement.
[13] Listed on a Milward needlebook
sold on eBay in 2019 as George A. Clark & Brother.
[14] Listed in an article entitled Needle
and Fish Hook Making. Messrs. Milward & Sons, Washford
Mills, Redditch, c1900, page 75 (see footnote 1 for more source
information).
[15] Listed in an 1899 Milward
advertisement and in Redditch and District Illustrated Business Review,
1925, page 16 (see footnote 1 for more source information).
[16] Listed in numerous Milward
advertisements.
[17] Paris Universal Exhibition 1855
Catalogue, pages 41 and 98, (S=books.google.com). The firm is listed as H. Millward & Sons, Redditch.
[18] Reports of the Paris Universal
Exposition of 1867 Vol. V., 1868, page 95 (S=books.google.com).
[19] Listed in some Milward
advertisements and Wyman’s Commercial Encyclopedia of the Leading
Manufacturers of Great Britain, 1888, pages 369 (see footnote 1 for source
details).
[20] Paris Universal Exhibition of 1878
Catalogue of the British Section Part I, page 150 (S=books.google.com).
[21] Paris Universal Exhibition 1889 –
Official Catalogue of the British Section, 1889, page 53 and 157 (S=books.google.com).
[22] Reports from Commissioners,
Inspectors, and Others; Twenty-Eight Volumes, Vol. XXX1, 1901, page 276
(S=books.google.com). Also mentioned in
the Birmingham Daily Post newspaper dated September 17, 1900 in an article
entitled “Local Awards at the Paris Exhibition”
(S=britishnewspaperarchives.co.uk).
[23] The International Exhibition
1862 Official Catalogue, pages 27 and 98 (S=books.google.com).
[24] Listed in numerous Milward
advertisements.
[25] Listed in numerous Milward
advertisements.
[26] Reports on the Vienna Universal
Exhibition, 1873, Part 1, page 39 and 58 (S=books.google.com).
[27] International Exhibition of 1876
Official Catalogue: Part I Main Building and Annexes - United States Centennial
Commission. Philadelphia, 1876, page 151 (S=books.google.com).
[28] Listed in Milward advertisements
in 1884 and 1886 and in the British Trade Journal October 1, 1880 (see
footnote 1 for source details).
[29] Melbourne International Exhibition
1880-1881 - Official Record Containing Introduction History of Exhibition
Description and Exhibition and Exhibits Official Awards of Commissioners and
Catalogue of Exhibits, 1882, pages 308, 320, 328 336 and 611 (S=books.google.com).
[30] Listed on Milward advertisement
from 1891.
[31] World’s Columbian Exposition
1893 Official Catalogue Part VIII Manufacturers and Liberal Arts Building
Leather and Shoe Building Department H. Manufacturers, 1893, page 121 (S=books.google.com).
[32] Listed in Milward advertisement
from 1899.
[33] Redditch and District
Illustrated Business Review, 1925, page 16 (see footnote 1 for source
information).
[34] Redditch and District
Illustrated Business Review, 1925, page 16 (see footnote 1 for source
information).
[35] Redditch and District
Illustrated Business Review, 1925, page 16 (see footnote 1 for source
information).
[36] Milward Scrap Book, Reference #
CR3097-276 (S=Warwickshire County Record Office, Warwick, UK).
[37] Mentioned in the Birmingham Daily Post newspaper dated September 17, 1900 in an article entitled “Local Awards at the Paris Exhibition” (S=britishnewspaperarchives.co.uk). The display seen here can be viewed at the Forge Mill Needle Museum in Redditch.
[38] W. Avery and J. English & Son
documents - Reference # CR 2028 box 59-8 and CR3097-65 (S=Warwickshire County
Record Office, Warwick, UK) and Reference #705:414/8189/34iib 1883-1913 and
#705:414/8779/11/id/5-11 1861-1914 (S=Worcestershire Record Office at the Hive
Archive in Worcester, UK).
[39] Historical information about the
amalgamations come from the following four sources. 1: Needlemakers in Alcester, Sambourne and
Studley by Richard Churchley, 2014, page 16 (S=copy purchased from Karen
Cording, a local historian, a specialist book seller in Redditch and owner of
the Nonnykettle book store). 2: Internet
history of Henry Milward & Sons (S=Wikipedia). 3: Milward Papers, Deeds & Documents
Reference #CR3097-151 and #CR3097-30 (S=Warwickshire County Record Office,
Warwick, UK). 4: History and Heritage page at the ENTACO website
(S=www.entacolimited.com/history.html).
[40] Paris Universal International Exhibition, 1878 Official Catalogue of the British Section Part 1, 1878, by George E. Eyre and William Spottiswoode, page 150 (S=books.google.com).
[41] Kelly’s
Directory of Merchants, Manufacturers and Shippers of the United Kingdom,
Eleventh Edition, 1897 by Kelly and CO., Limited, London, in the France
section page 693.
[42] Much of the historical information about Birmingham comes from Wikipedia article entitled History of Birmingham.
[43] Mechanical Patent #603 dated March
4, 1867 from the British Library - Business and Intellectual Property Centre –
London.
[44] Photographs from eBay. Brevete SGDG
information for Wikipedia. Other
translations of French to English from Google Translate. Location based on Google Maps.
[45] From a c1870 advertisement in the
Grande Publicite Ancienne Originale (S=www.ebay.com).
[46] Photographs from eBay. Brevete SGDG
information for Wikipedia. Other
translations of French to English from Google Translate. Location based on Google Maps.
[47] From the Le Figaro newspaper
edition of November 21, 1897 found on the website at https://histochronum. com/les-grands-magasins-nes-avec-le-second-empire/.
Translated from French to English by Google Translate.
[48] From the 1867 Paris Guide Par Les Principaux Crivains et Artistes de la France, Volume 1, no page numbers, 11th page from the book’s end (S=books.google.com). Translated from French to English by Google Translate.
[49] From the Le Figaro newspaper
edition of April 4, 1867 found on the website at https://histochronum.com/les-grands-magasins-nes-avec-le-second-empire.
Translated from French to English by Google Translate.
[50] Photographs from eBay. Brevete SGDG information for Wikipedia. Other translations of French to English from Google Translate. Location based on Google Maps.
[51] Drawing from Pin Interest website
at https://fr.pinterest.com/pin/628111479293622309/.